Datos generales:
- Cliente: Emerson Network Power
- Reforma data center existente en MTSO Vélez Sarsfield
- Plazo de ejecución: 90 días
- Año 2012
Alcance:
Proyecto para la reforma de las instalaciones de HVAC, la estructura metálica y civil necesaria para la inclusión de los nuevos equipos, la instalación eléctrica necesaria y la coordinación de todas las instalaciones compatibilizándolas con la arquitectura del edificio existente.
Objetivos/Impacto:
El objeto del proyecto era la ampliación de la potencia de refrigeración instalada de forma de complementar los sistemas existentes.
Descripción del proyecto
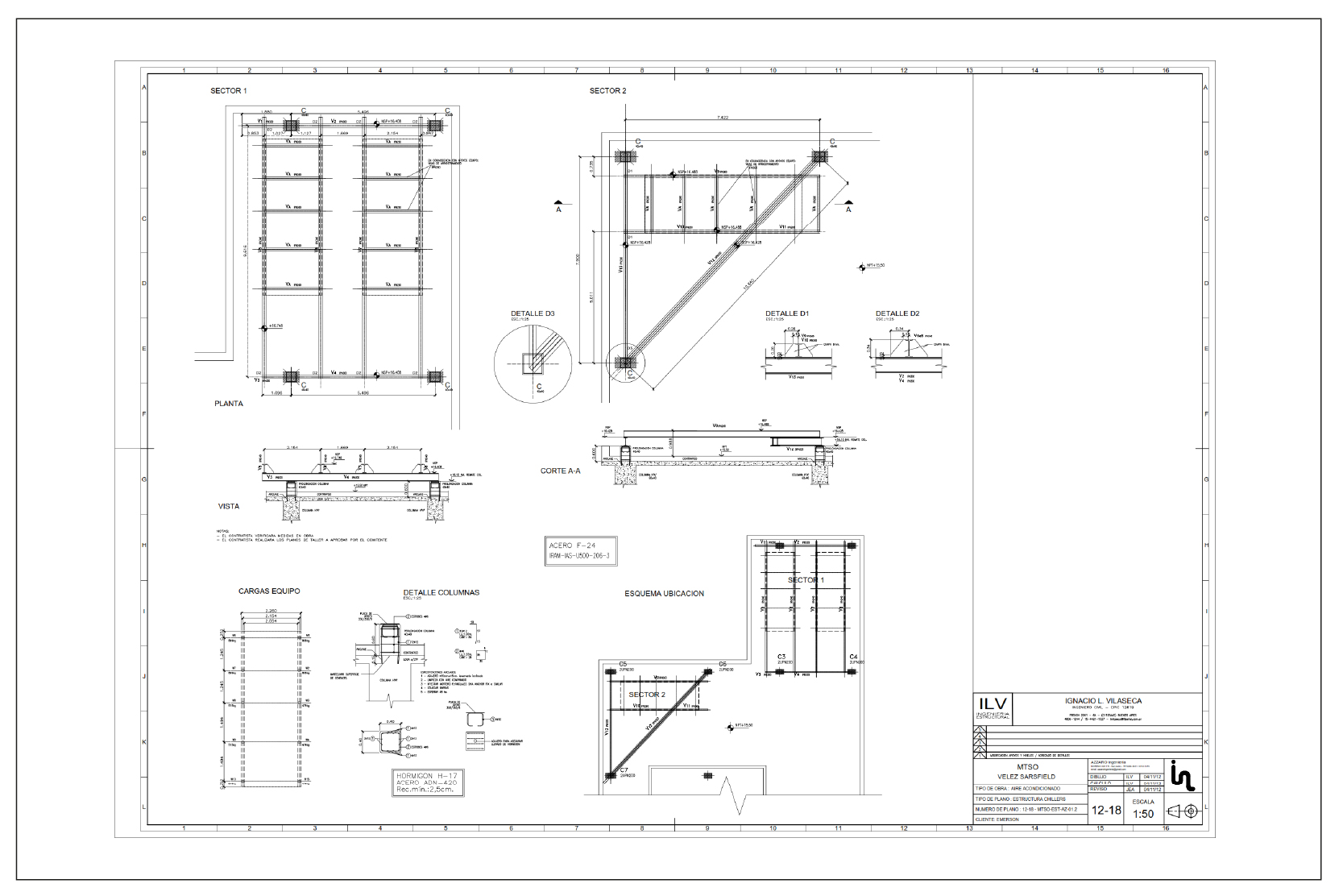
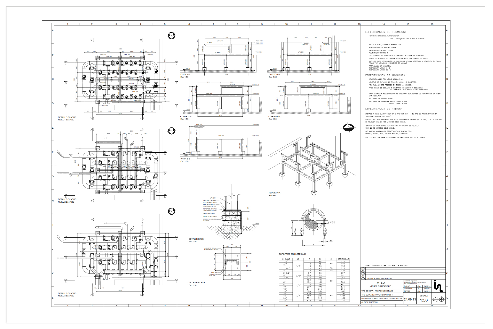
El proyecto se realizó teniendo en cuenta las posibilidades físicas que ofrecía el sitio y la implementación de forma de minimizar el impacto sobre el data center en operación. La solución incluyó una unidad de distribución de gas refrigerante que se alimentaba con el circuito de agua fría y una distribución de cañerías de cobre internas hacia unidades terminales exentas de toda condensación mediante el monitoreo permanente de las condiciones ambientales internas y la modulación en conjunto con la unidad de distribución. A la par del proyecto interno, se agregaron unidades enfriadoras a la planta existente para lo que modificó la estructura civil y se construyó un anillo de distribución de agua fría nuevo de forma de hacerla concurrentemente mantenible.
Cronograma:
El cronograma se ajustó a las necesidades del cliente tomando en cuenta las entregas de equipos y materiales disponibles o seleccionados.
Condicionamientos:
Las limitaciones del proyecto incluían el condicionamiento de la estructura del edificio, el funcionamiento ininterrumpido de las salas de datos y la tecnología acorde a implementarse para alcanzar la potencia necesaria.
Recursos:
Se utilizaron plataformas de CAD en 3D para la coordinación y modelado de las instalaciones de HVAC, civil y eléctrica.
Equipo:
Se conformó un equipo que estuviera coordinado por un representante del cliente y un equipo interno compuesto por 5 personas.

