Datos generales:
- Cliente: ANB y Asociados
- Proyecto del data center del Banco de San Juan
- Plazo de ejecución: 90 días
- Año 2016
Alcance:
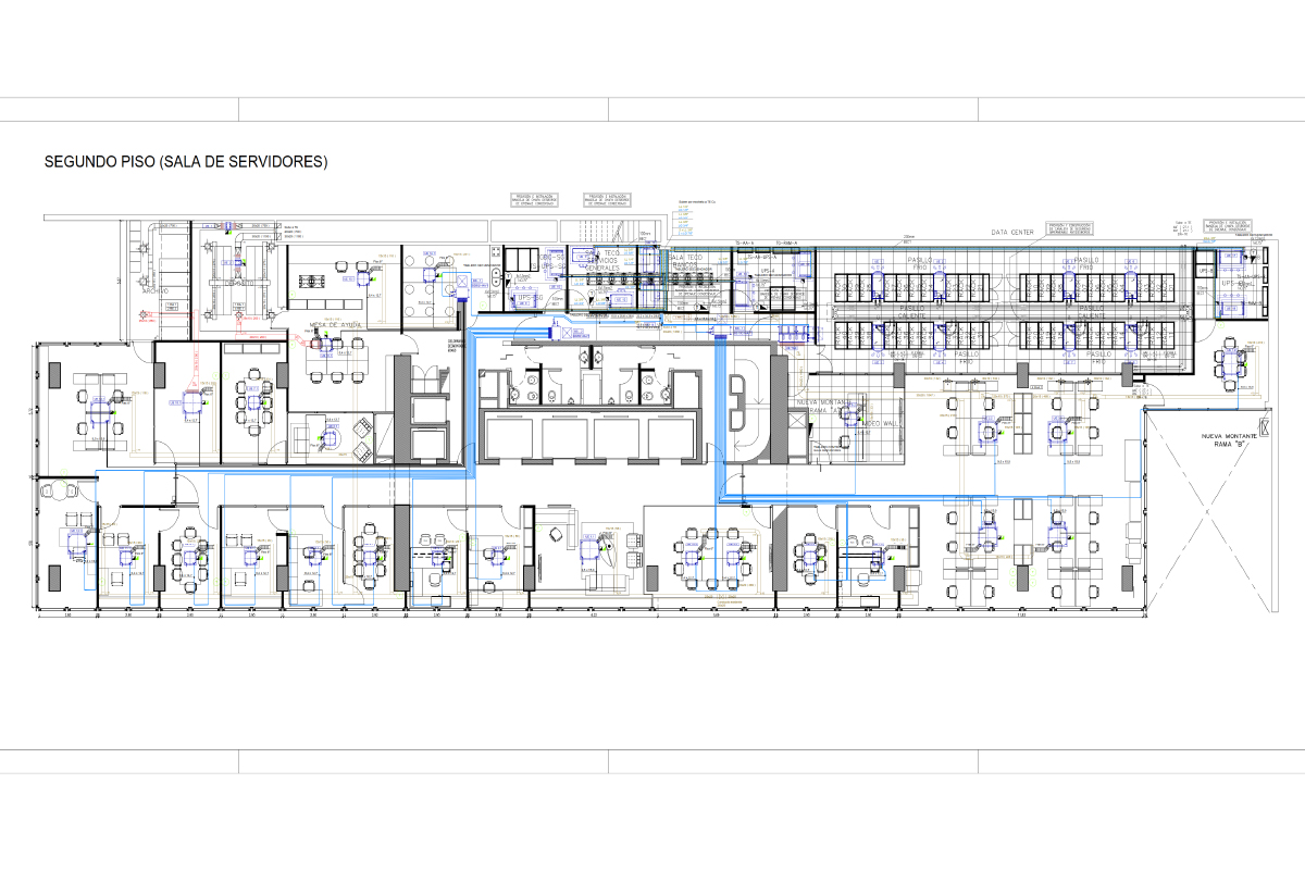
Proyecto para la implementación del data center del Banco de San Juan en el 2°Piso del edificio ubicado en la calle Cerrito, en el centro de la Ciudad de Buenos Aires.
Objetivos/Impacto: El objeto del proyecto era la implementación de un diseño compatible con el lugar físico disponible y que cumpliera con la potencia necesaria a disipar en el centro de datos, incluyendo su futura expansión.
Descripción del proyecto:
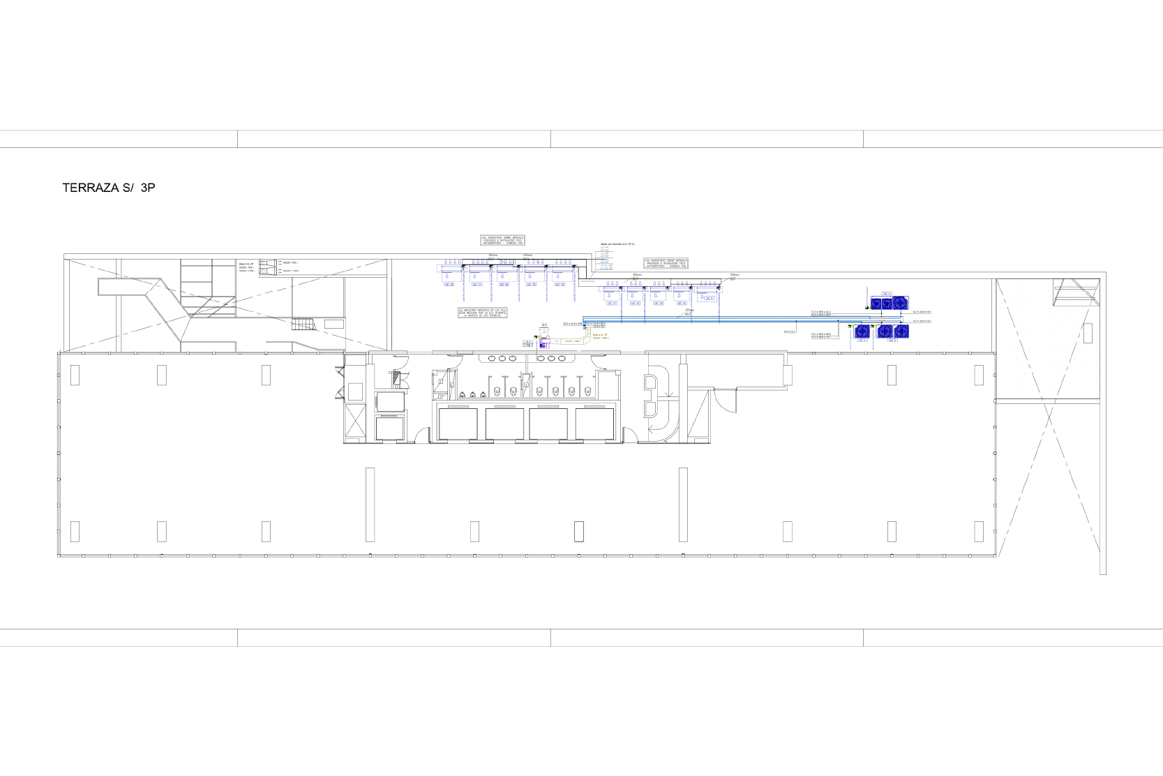
El proyecto se realizó teniendo en cuenta las limitaciones de los espacios que presentaba un edificio en pleno centro de CABA, los espacios exteriores disponibles y la capacidad de refrigeración a manejar, sumado a la posibilidad de minimizar el mantenimiento posterior. La solución adoptada incluyó la utilización de equipos del tipo in-row y dry coolers dispuestos en forma remota en una configuración que permitiera tener las reservas necesarias de equipamiento y capacidad de acuerdo a un cronograma de ocupación progresivo del centro de datos. Estos equipos además se conectaron al centro de monitoreo propio del Banco para su seguimiento en forma remota.
Cronograma:
El cronograma se ajustó a las necesidades del cliente tomando en cuenta las disponibilidades de los equipos y la tecnología seleccionada.
Condicionamientos:
Las limitaciones del proyecto incluían el condicionamiento de los espacios reducidos disponibles en el edificio y la potencia a disipar en la sala blanca propiamente dicha.
Recursos:
Se utilizaron plataformas de CAD para la coordinación y modelado de las instalaciones de HVAC, civil y eléctrica.
Equipo:
Se conformó un equipo que estuviera coordinado por un representante del cliente y un equipo interno compuesto por 4 personas.


